Eladó Családi ház, Csenger

#721100335

Eladó Családi ház

26 millió Ft

Csenger
Alapterület:
102 m2
Szobák száma:
4
Állapot:
Felújított
Építési mód:
Szilikát
Azonnal költözhető
CSOK igényelhető
Kertkapcsolatos

Kérjen személyes bemutatást!
Adja meg adatait, és hogy mikor érne rá!

Az Adatkezelési tájékoztatót elolvastam és elfogadom.

Megfelelő időpontok

Hétköznap délelőtt
Hétköznap délután
Hétköznap este
Hétvégén délelőtt
Hétvégén délután
Hétvégén este
Kérés elküldése
Felújított
Klímás hűtés-fűtés
Bútorozatlan
230 - 400 Volt
Van, saját vízórával
Vezetékes gáz
Közműhálózatba bekötve

Eladó felújított családi ház Csengerben

Árcsökkenés!!!

 

Felújított, kétgenerációs lehetőséget kínáló családi ház eladó Csenger szívében!

 

Csenger központi részén kínálunk eladásra egy 102 m²-es, teljes körűen felújított családi házat, amely akár két generáció számára is ideális választás. Az ingatlan négy kényelmes, tágas szobával rendelkezik, így kiválóan megfelel nagyobb családoknak is.

 

A ház eredetileg 1970-ben épült szilikátból, ennek köszönhetően tartós, masszív szerkezetű. A felújítás során modern, korszerű megoldásokat kapott, így külső és belső állapota egyaránt kiváló.
 Fontos: a vételár tartalmazza a felújítás teljes befejezését, vagyis a ház nem a jelen állapotában, hanem kész, befejezett állapotban kerül átadásra.

 

A fűtésről 4 darab hűtő-fűtő split klíma gondoskodik, amelyek egész évben energiatakarékos és kényelmes hőmérsékletet biztosítanak. A parkolás kényelmesen megoldható az udvarban, a ház pedig bútorozatlanul kerül átadásra, így az új tulajdonos teljes mértékben saját ízlésére szabhatja az otthont.

 

 

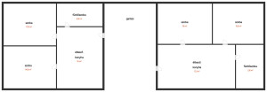
Helyiség Méret (m2)
Szoba 14.82
Szoba 17.96
Szoba 18.06
Szoba 11.81
Konyha + étkező 16
Fürdőszoba + WC 6.9
Konyha + étkező 13.12
Fürdőszoba + WC 3.8
Pince 17.7
Műhely 26.73