Eladó Ikerház, Nyíregyháza

#721100162

Eladó Ikerház

84.99 millió Ft

Nyíregyháza Borbánya
Alapterület:
125 m2
Szobák száma:
5
Állapot:
Új építésű
Építési mód:
Tégla
CSOK igényelhető
Zöldövezeti

Kérjen személyes bemutatást!
Adja meg adatait, és hogy mikor érne rá!

Az Adatkezelési tájékoztatót elolvastam és elfogadom.

Megfelelő időpontok

Hétköznap délelőtt
Hétköznap délután
Hétköznap este
Hétvégén délelőtt
Hétvégén délután
Hétvégén este
Kérés elküldése
Nincs
Hőszivattyú
Bútorozatlan
1
Összkomfort
Nem akadálymentesített
Bevezetve (230 Volt)
Van
Közműhálózatba bekötve

Új építésű ikerházak

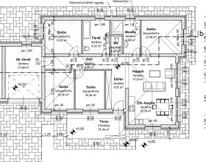
Eladó egy modern ikerház Nyíregyháza Borbánya városrészében, amely ideális választás családok számára. Az ingatlan új építésű, így a legfrissebb építési technológiák és anyagok biztosítják a maximális kényelmet és energiahatékonyságot. Az alapterülete 125 négyzetméter, (100m2+ garázs 17,68m2+ terasz 14,36m2) amelyben 4 tágas szoba található + nappali, így bőséges helyet biztosít a mindennapi élethez. A helyiségek pontos nagyságát és elhelyezkedéseit az alaprajzon láthatják, a belső berendezések belsőépítészeti tervek. Teljes átadás 2026. évre várható, a kivitelezés elkezdődött.

A fűtés hőszivattyúval megoldott, ami nemcsak gazdaságos, hanem környezetbarát megoldás is. Az összkomfortos állapot garantálja a modern életvitelhez szükséges kényelmet, és lehetőséget ad arra, hogy a jövőbeli lakók saját ízlésük szerint alakítsák ki a belső teret, hiszen az ingatlan bútorozatlan. A garázs lehetővé teszi a biztonságos parkolást, így nem kell a külső környezeti hatások miatt aggódni.

Ez a kivételes lehetőség 84 990 000 Ft irányáron elérhető, és ideális választás lehet mindazok számára, akik egy új otthont keresnek Nyíregyháza egyik kellemes, családbarát környezetében.

Balla Anett

Ingatlan&Bankbár

Helyiség Méret (m2)
Szoba 12.48
Szoba 11.2
Szoba 10.36
Nappali 17.1
Mosószoba 6.8
Fürdőszoba 8.32
WC 1.87
Előtér 9.51
Konyha + étkező 12.15
Szoba 10.36
Terasz 14.36
Garázs 17.68